Projet de construction d’une habitation unifamiliale avec cabinets médicaux
Thimister
2022
Le projet consiste en la construction d’une habitation et de cabinets médicaux sur un terrain en pente.
Situé à proximité d’une route, il s’oriente principalement vers l’arrière pour bénéficier de vues dégagées.
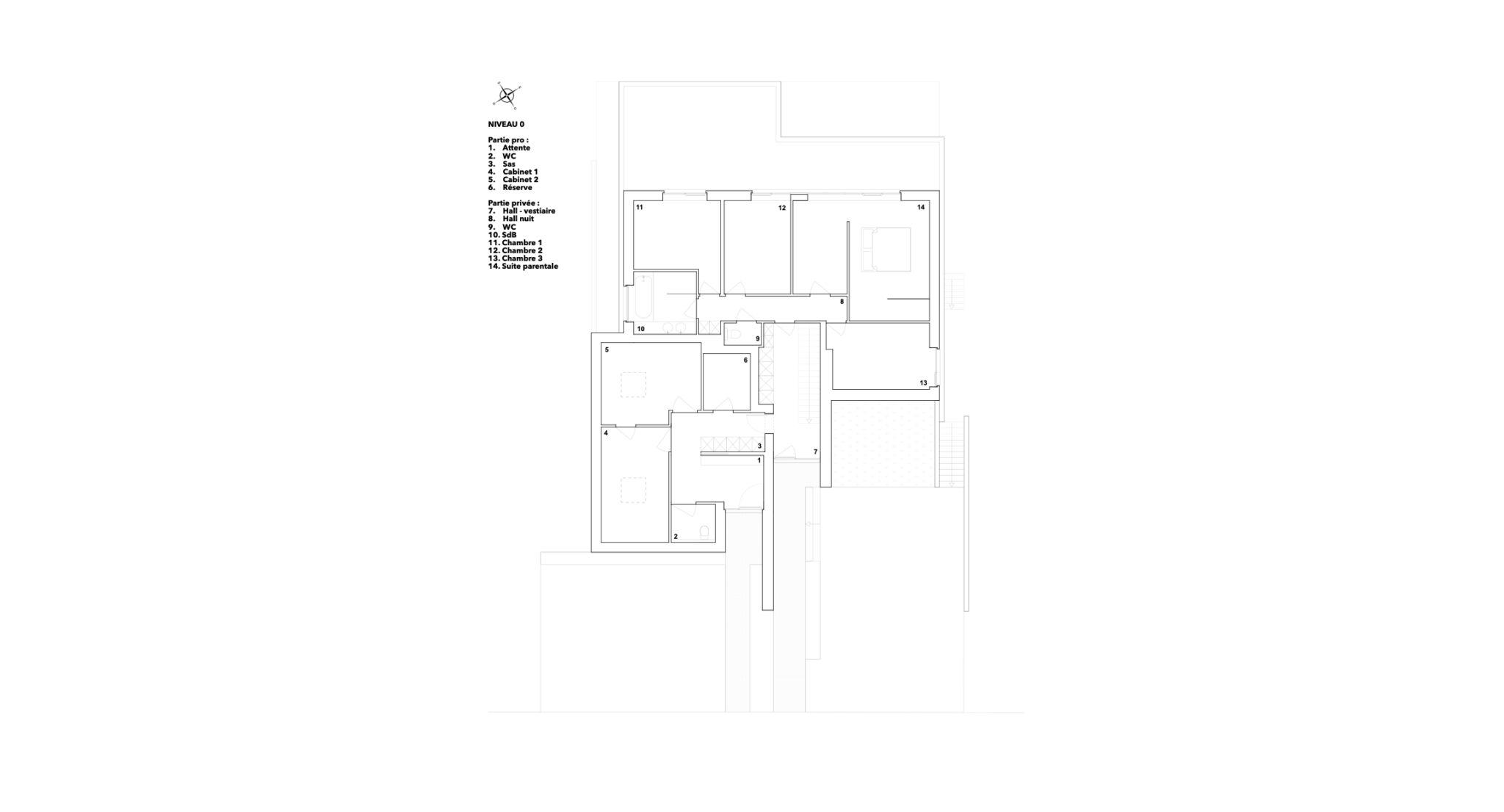
Les espaces des cabinets médicaux sont implantés à l’avant, avec des parkings et une entrée séparés de ceux de l’habitation.
L’entrée de la maison se situe au niveau des espaces de nuit, tandis que les espaces de séjour prennent place en contrebas, au niveau du jardin.
Chaque pièce du séjour bénéficie de son propre espace et de perspectives visuelles distinctes, maximisant la lumière et la connexion avec l’extérieur.
Une dalle en béton relie les volumes du rez-de-jardin, tout en abritant une terrasse couverte et des protections solaires.